根据《中华人民共和国im体育运动平台投标法》以及新里程集团相关规定,就太原西山医院屋面大修项目诚邀合格的投标人参加投标,现将有关事宜公告如下:
1 项目概况与谈判范围
1.1 项目名称:太原西山医院屋面大修项目
1.2 im体育运动平台方式:竞争性谈判,项目编号:XSYYTP202232
1.3 项目资金来源:医院自筹
1.4 项目地点:太原西山医院、白家庄分院及社区
1.5 项目概况:为解决太原西山医院住院楼屋面、门诊楼屋面及白家庄分院门诊楼及社区屋面漏水渗水情况,改善患者就医ayx爱游戏官方app平台入口,更好的服务于患者,拟对太原西山医院住院楼屋面、门诊楼屋面及白家庄分院门诊楼及社区屋面进行维修施工。
1.6 报价范围:具体报价范围、维修施工范围及所应达到的具体要求,以谈判文件中商务、技术和维修施工方案的相应规定为准。
1.7 维修施工方案:
1.7.1 住院楼部分屋面防水维修施工方案:
(1)拆除屋面缸砖新做止水带52.3×2×0.6m=62.76㎡;
(2)拆除屋面部分零星缸砖:62.76㎡,并恢复;
(3)拆除止水带混合垫层62.76㎡×0.3厚=18.82m³;
(4)止水带新作聚氨酯涂膜做防水62.76㎡;
(5)回填止水带混合垫层62.76㎡×0.3厚=18.82m³;
(6)修复地面刷冷底子油230㎡两遍;
(7)新铺SBS防水卷材(I型聚酯胎双面)(8.3m×15.8)=230㎡。
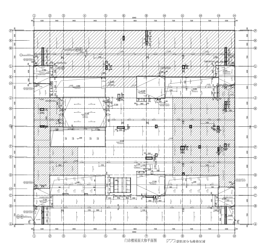
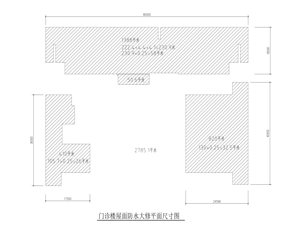
1.7.2 门诊楼部分屋面防水维修施工方案:
(1)止水带处拆除屋面炉渣层(19mX0.5mX4道)=38㎡×0.3=11.4m³;
(2)拆除屋面破损部分保护层:480㎡+360㎡=840㎡ ,新做水泥砂浆找平面层840㎡;
(3)恢复止水带炉渣层19m×4道=76m×0.5=38㎡×0.3厚)=11.4m³;
(4)止水带做水泥砂浆找平层,聚氨酯涂膜防水38㎡;
(5)刷冷底子油两道2785㎡;
(6)新铺SBS防水卷材(I型聚酯胎双面)3㎜厚2785㎡。
1.7.3 白家庄分院门诊楼及社区屋面防水维修施工方案:
(1)整理楼顶电缆线及清理垃圾;
(2)拆除屋面旧卷材:
门诊楼屋顶:(58.4mx17.7=1033.68㎡)+水箱周(12mx2.2=26.4㎡)
社区屋顶:(10.6mx8m=85㎡)+(18mx14m=252㎡)
门厅:42+16=58平米
合计:1455㎡
(3)刷冷底子油两遍(1455㎡);
(4)新铺SBS防水卷材(I型聚酯胎双面)3㎜厚:1455㎡;
(5)预估拆除修补找平层:85平米;
(6)拆除更换屋面UPVC50 通气管:15个。
1.7.4 维修平面示意图见附件
2 投标人资格要求
2.1 投标人必须是已在中国境内依法登记注册并仍有效存续的供应商,并且其持有的由工商行政管理机关所核发的有效营业执照上所载明的营业期限余额应当不少于本次采购的相关合同基本义务履行期限。
2.2 投标人应遵守有关的国家法律、法规和条例,具备本公告中规定的条件。
2.2.1 具有法人资格,能够独立承担民事责任能力;
2.2.2 具有良好的商业信誉,参加此项采购活动前,在经营活动中没有重大违法记录。未被列入 “信用中国”网站(www.creditchina.gov.cn)失信被执行人(报名时提供相关证明文件查验);
2.2.3 具有健全的财务会计制度,2021年度具备审计资格的审计部门出具的完整审计报告(三表一注),成立不满一年的应提供自成立以来的财务状况表(报名时提供相关证明文件查验);
2.2.4 具备建筑AYX爱体育施工总承包叁级及以上资质或建筑装饰装修专业承包贰级及以上资质。
2.2.5 供应商应提供近三年至少3个同类项目情况表,以证明供应商具有承担本项目要求的业绩。近年是指:2019年10月至今业绩证明原料:要求必须提供与最终用户签订的合同,包括但不限于合同首页、价格所在页、货物清单页、结算凭证、中标通知书、签字盖章页作为证明。
2.2.6 具有依法缴纳税收和社会保障资金的良好记录,提供报名截止日前连续6个月的完税证明及社保缴纳证明原料;
2.2.7 本次竞争性谈判不接受联合体投标。
3 报名要求
3.1 对本采购项目有意向的投标人携带以下资料到医院综合办公室报名进行资质审核。投标人须携带的资料如下:
3.1.1 法定代表人签署的针对本项目的身份证明书或授权委托书;
3.1.2 法定代表人及委托代理人身份证明文件;
3.1.3 营业执照副本、组织机构代码证副本、税务登记证副本(如企业证件已经三证合一则不需要提供组织机构代码证和税务登记证);具备建筑AYX爱体育施工总承包叁级及以上资质或建筑装饰装修专业承包贰级及以上资质证明;
3.1.4 银行基本开户许可证;
3.1.5 2022年4月-2022年9月的纳税凭证及最后一次社保缴纳凭证及明细(委托代理人在明细表中);
3.1.6 提供近三年至少3个同类项目业绩证明原料;
3.1.7 2021年度具备审计资格的审计部门出具的完整审计报告(三表一注),成立不满一年的应提供自成立以来的财务状况表;
3.1.8 以上资料需提供清晰完整有效证件原件(原件审核后退回)及复印件(加盖单位公章)按顺序装订成册一份。
3.2 报名地点:太原西山医院办公楼三层326室综合办公室。
3.3 竞争性谈判文件获取时间:2022年11月2日至2022年11月4日,每日08:00-12:00,14:30-18:30(北京时间)。
3.4谈判文件每套售价500元,售后不退。
4 发布公告平台:kok官网登录入口kok官网登录入口集团公司职工总医院公共信息网、太原西山医院订阅号tyxsyy2022。
5 联系方式:
im体育运动平台单位:太原西山医院有限责任公司
地址:太原市万柏林区太白东巷15号
联系人: 张亚萍 边娇香
电话: 0351-6210945
邮编:030053
电子邮箱:zgzyglk@163.com
太原西山医院
公告发布时间:2022年11月2日
附件: 太原西山医院住院楼屋顶维修平面尺寸图

太原西山医院住院楼屋顶维修平面图

太原西山医院门诊楼平面图-模型

太原西山医院门诊楼屋面大修平面尺寸图

白家庄分院门诊屋顶维修平面尺寸图
